Skip to content
  • 778-772-5754
  • Connect
    • Email
    • Facebook
    • Instagram
Skip to content
  • Home
  • About
    • Meet Ty Corsie
    • Meet Christian Rodriguez
    • Meet Dan Corsie
    • Meet Diane Kapeluck
    • Meet Julie Pham
    • Meet Mike Passingham
    • Meet Ngaire Afele
    • Marketing Services
    • Testimonials
    • Awards
  • Listings
    • Featured Listings
    • Recent Home Sales
  • Property Search
    • Custom Search
    • Homes for sale in Clayton
    • Homes for sale in Cloverdale
    • Homes for sale in Willoughby Heights
    • Homes for sale in Abbotsford
    • Homes for sale in Aldergrove
    • Homes for sale in Fort Langley
    • Homes for sale in Brookswood
    • Homes for sale in Sullivan
    • Homes for sale in Walnut Grove
    • Homes for sale in Panorama
    • Homes for sale in South Surrey
  • Resources
    • Buyer’s Guide
    • Seller’s Guide
    • Mortgage Calculator
    • PARTNER WITH ME AT REAL BROKER!
    • Home Finder
    • Home Evaluation
  • Videos
    • TYS CITY GUIDE 
    • TOURS WITH TY
  • Newsletter
  • Press
Real Broker Logo

#1 REAL ESTATE TEAM IN THE FRASER VALLEY!

* Based on 6-9 Agent team for 2024 Medallion stats.

Sold

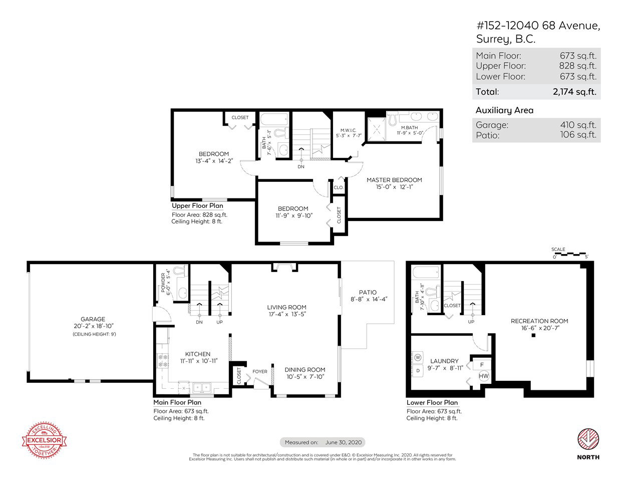
#152 - 12040 68 Avenue

West Newton – Surrey, BC

31
  • #152 - 12040 68 Avenue
  • $618,800
  • 3 bedrooms
  • 4 bathrooms
  • 2,174 sqft
1 of 31
This listing is provided by Royal LePage - Wolstencroft
  • Details

  • List Price $618,800
  • MLS® # R2471747
  • Style 2 Storey w/Bsmt., End Unit
  • Bedrooms 3
  • Bathrooms 4 (1 partial)
  • Year Built 2005
  • Age 17
  • Floor Space 2,174 sqft
  • Condo Fees $320
  • Taxes $2,698
  • Tax Year 2019
  • Features Central Location, Recreation Nearby, Shopping Nearby
  • Amenities Club House, Exercise Centre, In Suite Laundry
  • Address #152 12040 68 Avenue, Surrey, BC, V3W 1P5

About

TERRANE! Massive 2174 sq ft END UNIT townhouse in one of the best locations in the complex! Step inside to this bright unit which feels more like a house. Kitchen, living & dining areas on your main level with street entrance for ultra convenience. New electric fireplace & tile mantle, laminate floors, crown moldings, fresh paint & well kept by its current owners. Kitchen features stainless steel appliances & room for your island. Living area has sliding doors leading to your private West facing backyard..perfect spot for a bbq! 3 generous sized bdrms upstairs. Great rec room downstairs is a perfect media room or kids play room. Features a full washroom and HUGE laundry room. Double car side by side garage. Amazing value for this size of townhome.. Footsteps to Safeway & transit!

#152 - 12040 68 Avenue Virtual Tour

Contact

Ty Corsie Group
  • A featured listing of
    Ty Corsie Group
  • My Office REAL BROKER
  • Mobile 778-772-5754
  • Email Ty@tycorsie.com

Community

Mortgage calculator

Ty Corsie

 778-772-5754
 ty@tycorsie.com

 

logo
 

Get Social

REAL BROKER — 19951 80A MAILBOX 200 Langley, British Columbia V2Y 0E2 — 604-530-0231
© 2026 Ty Corsie Group
Home / R2471747
This representation is based in whole or in part on data generated by the Chilliwack & District Real Estate Board, Fraser Valley Real Estate Board or Greater Vancouver REALTORS® which assumes no responsibility for its accuracy. Copyright 2026 by the Greater Vancouver REALTORS®, Fraser Valley Real Estate Board, Chilliwack and District Real Estate Board, and BC Northern Real Estate Board. All rights reserved. Listing data last updated 2026-03-06T04:14:59Z.
Powered by Avenue
The growth engine for driven real estate professionals.