Skip to content
  • 778-772-5754
  • Connect
    • Email
    • Facebook
    • Instagram
Skip to content
  • Home
  • About
    • Meet Ty Corsie
    • Meet Christian Rodriguez
    • Meet Dan Corsie
    • Meet Diane Kapeluck
    • Meet Julie Pham
    • Meet Mike Passingham
    • Meet Ngaire Afele
    • Marketing Services
    • Testimonials
    • Awards
  • Listings
    • Featured Listings
    • Recent Home Sales
  • Property Search
    • Custom Search
    • Homes for sale in Clayton
    • Homes for sale in Cloverdale
    • Homes for sale in Willoughby Heights
    • Homes for sale in Abbotsford
    • Homes for sale in Aldergrove
    • Homes for sale in Fort Langley
    • Homes for sale in Brookswood
    • Homes for sale in Sullivan
    • Homes for sale in Walnut Grove
    • Homes for sale in Panorama
    • Homes for sale in South Surrey
  • Resources
    • Buyer’s Guide
    • Seller’s Guide
    • Mortgage Calculator
    • PARTNER WITH ME AT REAL BROKER!
    • Home Finder
    • Home Evaluation
  • Videos
    • TYS CITY GUIDE 
    • TOURS WITH TY
  • Newsletter
  • Press
Real Broker Logo

#1 REAL ESTATE TEAM IN THE FRASER VALLEY!

* Based on 6-9 Agent team for 2024 Medallion stats.

Sold

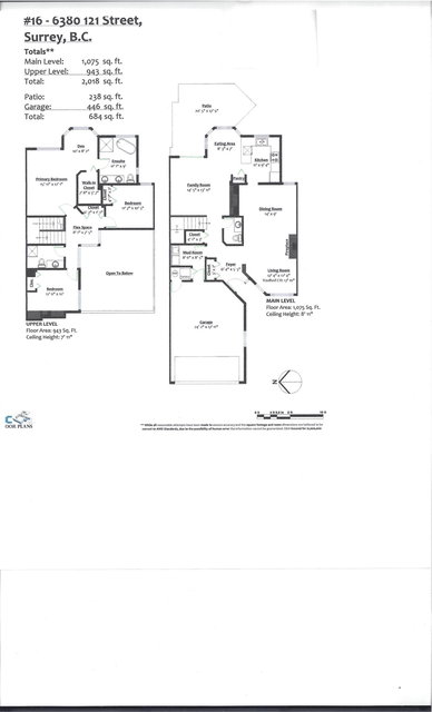
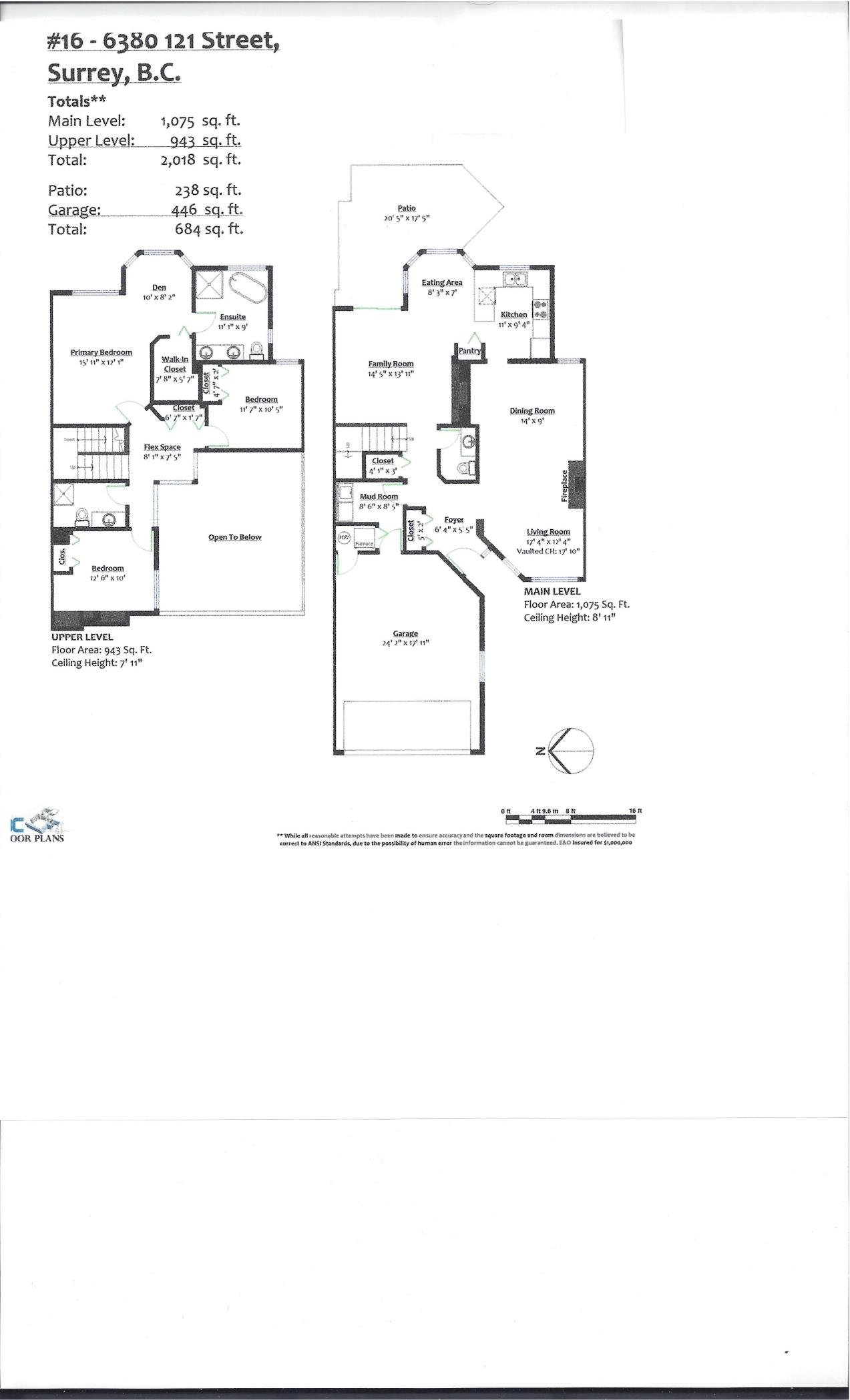
#16 - 6380 121 Street

Panorama Ridge – Surrey, BC

39
  • #16 - 6380 121 Street
  • $1,078,800
  • 3 bedrooms
  • 3 bathrooms
  • 2,018 sqft
1 of 39
This listing is provided by RE/MAX Colonial Pacific Realty
  • Details

  • List Price $1,078,800
  • MLS® # R2789697
  • Style 2 Storey
  • Bedrooms 3
  • Bathrooms 3 (1 partial)
  • Year Built 1991
  • Age 32
  • Floor Space 2,018 sqft
  • Condo Fees $535
  • Taxes $3,038
  • Tax Year 2023
  • Features Central Location, Recreation Nearby, Shopping Nearby
  • Amenities Club House, In Suite Laundry
  • Address #16, 6380 121 Street, Surrey, BC, V3X 1Y6

About

Welcome to beautiful Boundary Park. Forest Ridge is a very well maintained, well run complex of town-homes that offers all the shops, services, schools, parks you want while providing a garden oasis with a lake, walking trails, & great neighbourhood all in a tranquil setting away from the “city”. This remodelled 2 level 3 bed 3 bath townhome has new custom kitchen, quartz counter-tops, marble back-splash, all new appliances, new built in buffet/bar, new fixtures, baseboards, crown mldgs and a new paint all around including the ceiling. Beautiful high end vinyl flooring. Huge Master bedroom with den and fabulous ensuite. A 238 sq ft patio to relax and enjoy the privacy. No age restrictions, pets OK, rentals OK. Offers accepted at anytime

Listing provided courtesy of Greater Vancouver REALTORS®. Disclaimer: The information contained in this listing has not been verified by REAL BROKER and should be verified by the buyer.

Contact

Ty Corsie Group
  • A featured listing of
    Ty Corsie Group
  • My Office REAL BROKER
  • Mobile 778-772-5754
  • Email Ty@tycorsie.com

Community

Mortgage calculator

Ty Corsie

 778-772-5754
 ty@tycorsie.com

 

logo
 

Get Social

REAL BROKER — 19951 80A MAILBOX 200 Langley, British Columbia V2Y 0E2 — 604-530-0231
© 2026 Ty Corsie Group
Home / R2789697
This representation is based in whole or in part on data generated by the Chilliwack & District Real Estate Board, Fraser Valley Real Estate Board or Greater Vancouver REALTORS® which assumes no responsibility for its accuracy. Copyright 2026 by the Greater Vancouver REALTORS®, Fraser Valley Real Estate Board, Chilliwack and District Real Estate Board, and BC Northern Real Estate Board. All rights reserved. Listing data last updated 2026-03-06T04:14:59Z.
Powered by Avenue
The growth engine for driven real estate professionals.